- ホーム
- > 土木建設機械
- > 丸善工業(maruzen)
- > 丸善工業 油圧杭打機
丸善工業 油圧杭打機 [KH-150-2]
商品詳細
| 要納期確認 |

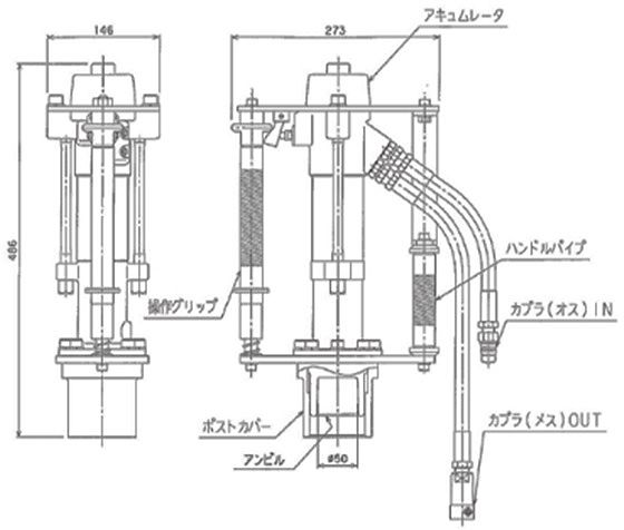
【仕様・特徴】
●単管パイプの打込みに特化した軽量モデル!
●質量約20kgと誰でも扱えるコンパクトな設計で、小口径の
●単管パイプの打込みに最適です。 (単管キャップ不要)
| 型式 | KH-150-2 |
| 外形寸法(mm) | 486×273×146 |
| 質量(kg) | 約20 |
| 作動油圧(MPa) | 8〜11 |
| 許容耐圧(MPa) | 21.4 |
| 最高圧力(MPa) | 20.6 |
| 所要油量(ℓ/min) | 20〜25 |
| 打撃数(bpm) | 1920(20ℓ/min 時) |
| 打込部内径(mm) | Φ50 |
| 接続金具 | 3/8インチカプラ |
| 許容背圧(MPa) | 2.5 |
| 推奨作動油 | ISO VG32 耐摩耗性作動油 |
| 延長ホース(m) | 3/8インチ×10 |

更に詳しくは丸善工業ホームペジにてご確認下さい●使用方法:油圧源の圧力、流量がハンドブレーカの仕様に適合していることを確認して下さい。

1.カプラにゴミ埃が付いていないことを確認し、延長ホースで本機と油圧源とを接続します。
(接続後は、カプラロックをして下さい)
2.本機を安全にご使用いただくために、落下防止処置を行ってから使用して下さい。
3.打込む杭、またはパイプに本機ポストカバー内のアンビルをかぶせます。
4.油圧源を起動し、本機に油が流れるようにします。
実作業
5.ハンドルグリップ・操作グリップを持ち、本機に押しながら操作グリップを下げると本機は作動します。
6.所定の深さまで打ち込み後、本機を停止します。
作業終了
7.作業終了後、油圧源を停止します。
8.延長ホースを取外します。
9.本体ホースのカプラを互いに接続し、ゴミ埃の付着を防止します。
10.本機に付いた泥や汚れを清掃します。
関連商品
-
レッキス工業100バット融着機CU型 [311207]
1,098,900円(税込)
★REX レッキス工業 ガス用PE管用工具 100バット融着機CU型お支払い方法お振込み・メーカー直送限定品 ※本品は1ヶ月以上納期を要する場合がございます。お急ぎの場合はお問い合わせ下さい。 【…
-
レッキス工業 50-IIスクイズオフ工具 [310488]
63,500円(税込)
★レッキス工業REXPE管融着機器・PE管融着機器 周辺工具 遮断(スクイズオフ)工具 【特徴】 ●ガス配管用ポリエチレン管融関連工具です。 スクイズオフ工具/50・75品 番形式(品名)適応サ…
-
レッキス工業ガンタイプバーコードリーダー [3140C5]
55,000円(税込)
H★レッキス工業 REX PE管融着機器・周辺工具 EFコントローラ用オプション 3140c5★ ※本品は1ヶ月以上納期を要する場合がございます。お急ぎの場合はお問い合わせ下さい。 ●品番=3140…
-
レッキス工業ガス用PE管EFコントローラ GEF200B-II [3130D1]
341,880円(税込)
★REX レッキス工業 ガス用PE管融着機 3130D1 ガス用PE管EFコントローラ GEF200B-II 3130d1バーコード継手対応【特徴】 ●融着履歴確認が液晶画面上で可能に 全融着履…
-
大肯精密ガス専用ボーリングバー
44,500円~114,720円(税込)
大肯精密 ガス工事専用工具 ボーリングバー受注生産品・実働日数60日【特徴】 ★路面上に打ち込み、ガス漏れを検索する工具です。 ★ご購入頂いた製品のサイズとお届け地域によって送料が加算される場合が…
-
大肯精密PEフラグロン
21,880円~28,900円(税込)
★大肯精密 ガス工具 PE管専用ガスバッグ★バリエーション有り【特徴・仕様】 ●(フラグ)形状により、管内面の接触面積が広く、内圧を高くかけられるので、越しガス量が少なく安全です。 ●ホースの色が…
-
板橋機械 油圧式NSジョインター 75mm〜250mm用部品
8,500円~105,000円(税込)
ITABASI 板橋機械 油圧式NSジョインター 75mm〜250mm用補給部品●本かーとではNSジョインター75〜250用の各補給パーツをご提供しています。 下記のバリエーションがございます。カー…
-
板橋機械ミニアスファルトスプレヤー【お振り込み・メーカー直送品】 [M0001]
166,110円(税込)
★ 板橋機械ミニアスファルトスプレヤーM0001★手動式・本品はメーカーからの直送品となり、法人様・個人商店様(屋号必須)のみお届け可能です。・一般貨物便のためお届け日時指定はお受けできません。・お支…
-
ガス用ライニングカッター [小]
92,000円(税込)
新和産業 ライニングカッター小(ライニングパイプ切断機 PLPカッター)小※沖縄県へのお届けは下記表の送料が掛かる場合がございます。 【仕様・特徴】 ★プラスチック、ゴム等でコーティングされた外面…
-
丸善工業 油圧パワーユニット [U-070-3]
402,600円(税込)
Maruzen 丸善工業 油圧パワーユニット / U-070-3 u0703要納期確認・お振り込み・メーカー直送品・日時指定不可・本品は直送品となり、法人様・個人商店様(屋号必須)のみお届け可能です(…
| ※免責事項
本サービスでは、サイト上に最新の商品情報を表示するよう努めておりますが、メーカーの都合等により、商品規格・仕様・定価(容量、パッケージ、原材料、原産国など)が変更される場合、生産終了となっている場合がございます。このため、実際にお届けする商品とサイト上の商品情報の表記や、ご提供価格が異なったり、お届け不可となる場合がございます。その場合は受注契約は無効となり、当店はお客様に対して発生した損害は一切責任を負わないものとします。
またご使用前には必ずお届けした商品の商品ラベルや注意書きをご確認ください。さらに詳細な商品情報が必要な場合は、メーカー(製造元)に直接お問い合わせください。また、販売単位における「セット」表記は、箱でのお届けをお約束するものではありません。 以上あらかじめご了承ください。 |